PALLET UNLOADING AND DEPALLETIZING SYSTEMS
The filling process starts with a containers depalletizing area. The conteiners are unloaded into buffer table, and handled with transportation belts.
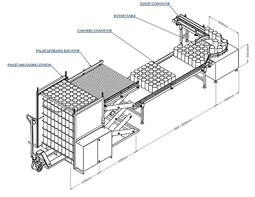
Sapli’s Packaging Feeding System is designed to depalletise containers
from pallets and subsequently feed them to the Filling & Packing Line.
The system consists of the follow parts:
1. Pallet Unloading System
2. Pallet Leveling Elevator
3. Containers Feed Conveyor
4. Oriented Containers Exit and Handling Conveyors
Suitable for any kind of pallet size and specially designed
to handle any kind of packaging heights and diameters.
Made of AISI -304 stainless steel









